Zum Inhalt springen

Resafa Basilica A Conception and Conservation

Location:
Resafa, Syria
Client:
Technische Universität Berlin
Completion:
2008; 2009 – 2012 Consolidation + Conservation of Construction
Subject:
Longterm Preservation Progam, Consolidation, Conservation and Restoration
Cooperation:
DAI Berlin, Prof. Berger, Tobias Horn M.Sc.,DGAMS, Damascus, Syria

Location:
Client:
Completion:
Subject:
Cooperation:

Resafa, Syria
Technische Universität Berlin
2008; 2009 – 2012 Consolidation + Conservation of Construction
Longterm Preservation Progam, Consolidation, Conservation and Restoration
DAI Berlin, Prof. Berger, Tobias Horn M.Sc.,
DGAMS, Damascus, Syria

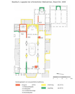
The Byzantine fortress and settlement is still preserved with typical elements of its urban structure, city wall fortifications and important historic public buildings as churches, palaces and central cisterns. Extensive problems for maintenance occur because of two aspects:
1st  The very instable foundation ground of bedrock, which is pervaded by an irregular system of caves because of underground water erosion and
2nd  the very poor and sensitive quality of the built stone block material, which reacts because of climatic reasons and encourages decomposition and plastic deformation of building elements.
The long-term program provides a general preservation according to the current historic appearance. Repairs will be done according to the acute conditions of the endangering damages. Obligatory is the principle of consolidation instead of reconstruction, specific treatment and the application of conservation methods according to the local availability.