Zum Inhalt springen

Ephesos Serapeion Concept Study for Conservation and Presentation

Location:
Ephesos, Turkey 
Client:
Austrian Institute of Archeology (ÖAI)
Completion:
2013 – 2015
Subject:
Site preservation, Reconstruction planning ex.
Cooperation:
University of Regensburg, Ephesus Foundation, Sinan Ilhan, Convex Company

Location:
Client:
Completion:
Subject:
Cooperation:

Ephesos, Turkey 
Austrian Institute of Archeology (ÖAI)
2013 – 2015
Site preservation, Reconstruction planning ex.
University of Regensburg, Ephesus Foundation, Sinan Ilhan, Convex Company

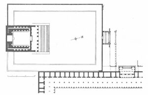
The Serapeion is an extraordinary exponent of a temple in Corinthian style, with an execution of an outstanding level with marble blocks of extremely high quality of stonemasonry. In its history it has been converted to a church by addition of a presbyterium to the existing structure. The building collapsed as the result of an earthquake in late antique times.
First excavation took place around 1913. In the year 2012 researches onto the building structure began. To implement appropriate conservation measures our office had been engaged to investigate the options of anastylosis and to develop concepts for the stabilization, conservation, and presentation of the building’s remains.
The study establishes guidelines and targets for the treatment of the ruined building inside its temenos area. The potentials and limits of anastylosis measures are discussed in 3 optional scenarios. The 3 options represent minimal, medium and maximum solutions of anastylosis and flanking reconstruction measures focusing on the well preserved gable and the front façade with massiv monolithic columns.